西山華府
更新時間:2017-05-31
| 設計風格 | 美式 | 戶型案例 | 4室2廳 | 案例面積 | 220 |
|---|---|---|---|---|---|
| 樓盤名稱 | 西山華府 | 所在城市 | 北京 | 案例造價 | 50 |
| 設計師 | |||||

案例說明:
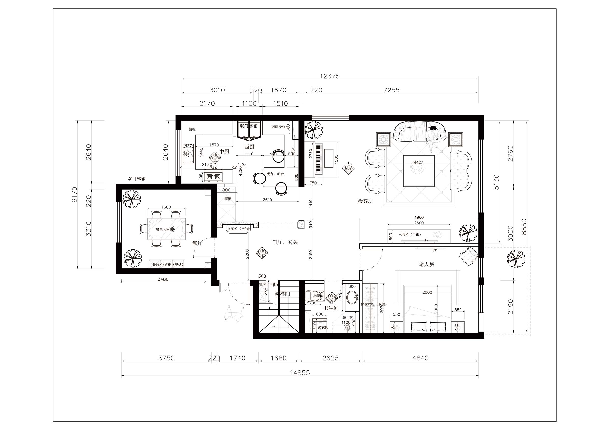
本案例業主是事業有成的一家三口,小區環境十分優美,緊鄰百望山,戶型空間十分敞亮、明快。但此戶型擺在我面前的最大問題是入戶門廳太大,空間浪費明顯、及臥室房間不夠用等。因此在設計上首先要解決空間布局的問題,首先增加門廳玄關位置,擴大中西廚面積,其次在一樓增加老人房解決房間較少的問題。
在風格設計上結合客戶的喜好及習慣以美式簡約設計為主,配以溫馨的色調,古樸的家具以及賦予多變的頂面造型及燈光設計營造業主向往的舒適、自由、大氣的空間。
同風格案例:更多>>
同面積案例:














京公網安備 11010802032436號